עיריית רחובות תבנה מכללה חדשה ברחובות ברחוב דרך אצ"ל
המכללה תיבנה במקום בו קיימים כיום מגרשי הטניס

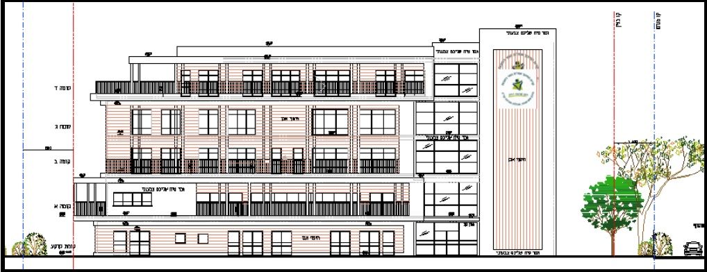
עיריית רחובות אישרה הקמת מכללה חדשה ברחובות "מכללת המר" אשר תיבנה בדרך אצ"ל 3.
במתחם המיועד מתוכננים 3 פרויקטים, בניית 500 מעונות סטודנטים על ידי חברת שיכון ובינוי אשר זכתה במכרז לבניית המעונות, בניית מרכז הצעירים רחובות (הפלטפורמה) ובניית מכללת המר
בשלב זה לא מוגדר אופי המכללה ויעדיה.
בניין המכללה ישתרע על פני 5 קומות וכולל כיתות לימוד, כיתות מדעים, אודיטוריום/בית מדרש, הנהלה וחדרי ספח ) קפיטריה בקומת הקרקע ועוד.
מיקום המכללה במתחם הרחובות אצ"ל - דרך הים - המנוף היכן שממוקמים כיום מגרשי הטניס.


להצטרפות לוואטסאפ חדשות רחובות להצטרפות לקבוצת וואטסאפ ששולחת דילים וקופונים לאליאקספרס
באתר זה שולבו סרטונים, תמונות ומידע מהרשתות החברתיות בשימוש לפי סעיף 27א לחוק זכויות יוצרים. במידה וידוע מי צילם שלחו למייל בקשה לצרף קרדיט או להסרה
-
אורחיהיו מקומות חנייה?04.08.21 15:45 תגובה
-
אורחבמרתף...04.08.21 16:24 תגובה
-
-
אורחבית מדרש בתי כנסת ישיבה יבנו!!04.08.21 15:55 תגובה
-
אורחגם כמה מיקוואות.04.08.21 17:18 תגובה
-
אורחבעזרת השם, ככל שיהו יותר מקוואות יהיה יותר קדושה וסוף סוף נחזור להיות עם ישראל אמיתי בארץ אבותינו!05.08.21 07:02 תגובה
-
אורחאתה מתכוון חסרי מוח שלא יודעים כלום חוץ מלהתפלל05.08.21 14:21 תגובה
-
-
אורחרחובות עיר הקודש04.08.21 16:29 תגובה
-
אורחחייב בית מידרש, זאת אומרת שוב לחברה הדתית ומה אתה עושה בשביל החילונים,? 00000 בושה.04.08.21 16:40 תגובה
-
אורחיש מכון ויצמן , פרס , פקולטה לחקלאות . כל המקומות שציינתי קצת יותר גדולים מבנין אחד של 5 קומות שבו יהיה חדר של בית מדרש. אז יהיה בית מדרש מה כואב לך ? אף אחד לא אמר שסמרטוטים כמוך לא יוכלו להיכנס לשם.05.08.21 20:22 תגובה
-
-
אורחמאוד חכם.... כאילו שאין שם מספיק פקקים כבר עכשיו, אז יוסיפו עוד מעונות ועוד מכללה בדיוק במיקום ה"אידיאלי" הזה. עיריה חכמה יש לנו.04.08.21 17:06 תגובה
-
אורחמתקרבים לשמים04.08.21 17:25 תגובה
-
אורחמה ההיגיון בלהקים בדיוק שם מכללה, אם 5 דקות משם יש את הפקולטה, 10 דקות משם יש את מכון ויצמן, ועוד 10 דקות לצד השני יש את מכללת פרס?????04.08.21 20:08 תגובה
-
אורחעיר של חכמים וומדענים צריך המון מקומות לימוד😜04.08.21 22:17 תגובה
-
-
אורחאיפה שאפשר הם יבנו בתי מדרש ככה זה04.08.21 21:34 תגובה
-
אורחנראה שכבודו קצת מבולבל, כתוב מכללה ולא בית מדרש... אם אתה צריך עזרה בהבנה יש בתי ספר גם למבוגרים05.08.21 07:03 תגובה
-
אורח😃05.08.21 16:41 תגובה
-
-
אורחשיבינו במקום יחידות דיור לסטודנטים.05.08.21 10:33 תגובה
-
אורחיש כאן מהלך מתוחכם = ”לכבוש” את חלקה המערבי של העיר על ידי פרויקטים שיגרמו לאוכלוסיה החרדית להתרכז באזור זה. עצוב שעיר המדע והתרבות הופכת לאט- לאט לעיר ההתחרדות. והדמע (קריית משה, זרנוגה)06.08.21 10:53 תגובה
-
אורחלא מוגדר אופי המכללה ויעדיה? אז איך יודעים שצריך? איך יודעים שצריך 5 קומות? מי הגורם המממן?06.08.21 12:37 תגובה
-
אורחהמאפייה האיטלקית שבעייריה חוגגת על כולם דוגמא ליברמן והדיקטטור לשעבר06.08.21 18:10 תגובה
-
אורח!06.08.21 22:18 תגובה
-
-
אורחגם במתחם חצי חינם בונים מגדל בבל בחסות העיריה07.08.21 01:20 תגובה
-
אורחממשיכים עם בניה והופכים את רחובות מעיר ההדרים לעיר הבניינים07.08.21 09:11 תגובה
-
אורחסיז נישט המכללה. סיז הכולל פון דה רבצן אנד דה פריזיטים סיז נישט הרבט. פוי. גויל נפש. הפקקטה מדינה מיט הפקקטה עיריה. אוי וי זמיר. הצילו10.08.21 20:52 תגובה
מנסה לטעון שוב
הצטרפו אלינו!
הצטרפו לקבוצות הוואטסאפ שלנו:
אפליקציה בחנות האפליקציות: