ברחובות עתידים לקום ולעבור שדרוג 7 מתקני מבני מנוחה ותפעול לנהגי התחבורה הציבורית במסופי האוטובוסים
לאחרונה אישרה הועדה לתשתיות לאומיות את התוכנית הארצית במסגרתה יוקמו כ310 מבנים לרווחת הנהגים. חלק מהמקומות הם מבנים קיימים שיעברו שדרוג כמו בתחנה המרכזית וחלקם יהיו חדשים

התוכנית לשדרוג תנאיהם של נהגי האוטובוסים אושרה לאחרונה בוועדה לתשתיות לאומיות. התוכנית כוללת הקמה של כ- 310 מבני מנוחה ותפעול לרווחת הנהגים במסופי האוטובוסים בכל רחבי הארץ
התוכנית האסטרטגית לפיתוח התחבורה הציבורית בפריסה ארצית ושיפור תנאי עובדי התחבורה הציבורית עולה שלב: הוועדה לתשתיות לאומיות (ות"ל) אישרה לאחרונה את תת"ל 131, התוכנית לתשתית לאומית לתכנון והקמה של מבני מנוחה, תפעול ומנהלה לנהגים בכ-310 מסופי תחבורה ציבורית בכל רחבי הארץ. המבנים מיועדים לשרת 18 אלף נהגים ויוכלו להיבנות בפרק זמן קצר.
התוכנית, שאותה יזמה שרת התחבורה והבטיחות בדרכים, תא"ל (במיל') מירי רגב מקודמת על ידי משרד התחבורה, באמצעות חברת נתיבי איילון, ונועדה לספק מענה למחסור במבנים לנהגים, אשר השפיע לרעה על תנאי העבודה של הנהגים ועל איכות השירות לציבור. הקמת המבנים שאושרו היום תספק לנהגים תנאי עבודה נאותים ומקום להתרעננות ומנוחה בין הנסיעות, ובכך תשפר את איכות השירות ואת הבטיחות בתחבורה הציבורית. שיפור תנאי העבודה של הנהגים צפוי למשוך עובדים חדשים לענף אשר סובל ממחסור בכוח אדם.
תת"ל 131 היא חלק מתוכנית אסטרטגית נרחבת של משרד התחבורה והרשות הארצית לתחבורה הציבורית באמצעות חברת נתיבי איילון, להסדרה סטטוטורית ולהקמת תשתיות תחבורה ציבורית איכותית בכל רחבי הארץ, שנועדו להרחיב ולשפר משמעותית את השירות ואת השימוש בתחבורה ציבורית.
התוכנית האסטרטגית כוללת הסדרה ובנייה של מאות מסופי תחבורה חדישים, פיתוח חניונים ושדרוג תחנות מרכזיות, בדגש על תשתיות לאוטובוסים חשמליים. משרד התחבורה שואף להעביר עד שנת 2026 את מרבית הצי העירוני להטענה חשמלית ונקייה.
במרבית מתקני התחבורה הציבורית אין כיום תכנית מפורטת מאושרת המאפשרת להקים מבנים תפעוליים לרווחת הנהגים, שישמשו למנוחה, שירותים, מנהלה ותפעול המסוף. בחלק מהמתקנים פועלים פתרונות מאולתרים ובחלקם לא ניתנו פתרונות כלשהם. מצב זה פוגע בעבודת נהגי התחבורה הציבורית, המבלים שעות רבות בכבישים העמוסים, וכך מפחית את האטרקטיביות של המקצוע ותורם למחסור בנהגים, שאינו מאפשר לספק שירות איכותי בתדירות גבוהה.
תת"ל 131 שאושרה היום, מתבססת על ייעודי קרקע מאושרים, ואינה כוללת שינוי ייעודי קרקע. התכנית מקצה זכויות להקמת מבנים אלה בכ-310 מסופי תחבורה ברחבי הארץ ותאפשר את הקמתם של מאות המבנים הנחוצים בטווח זמן קצר.
המסופים שיוקמו בעיר רחובות
מסוף הלר רכבת רחובות -מתקן בינוני
חניון לילה דרך הים רחובות- מתקן גדול עם חניון לילה
חניון קרית משה רחובות -חניון לילה
תחנה מרכזית רחובות רחובות -מתקן קטן
מסוף קרית משה רחובות -מתקן קטן
מרכז רפואי קפלן רחובות -מתקן קטן
רחובות מזרח רחובות -מתקן בינוני
הגדרות
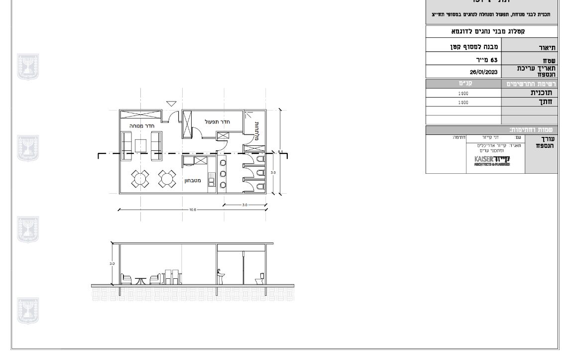
מתקן קטן - מתקן בגודל שבין 50 מ"ר ל350 מ"ר

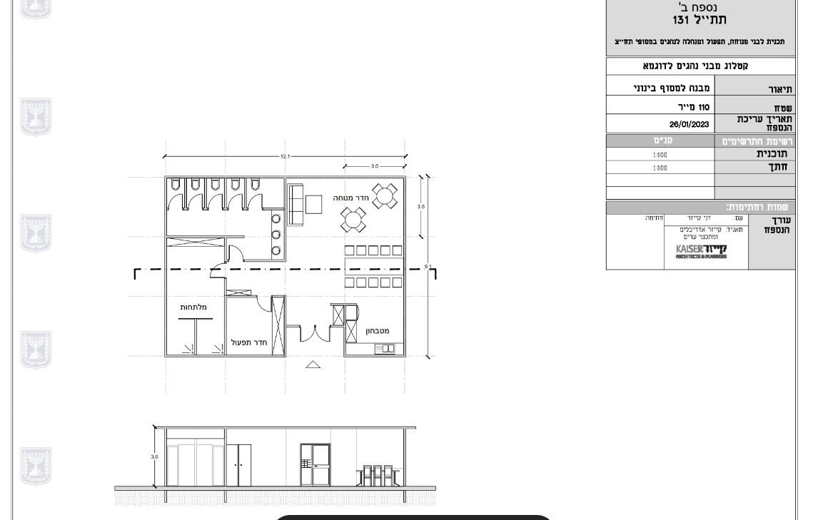
מתקן בינוני מתקן בגודל שבין 65 מ"ר ל450 מ"ר

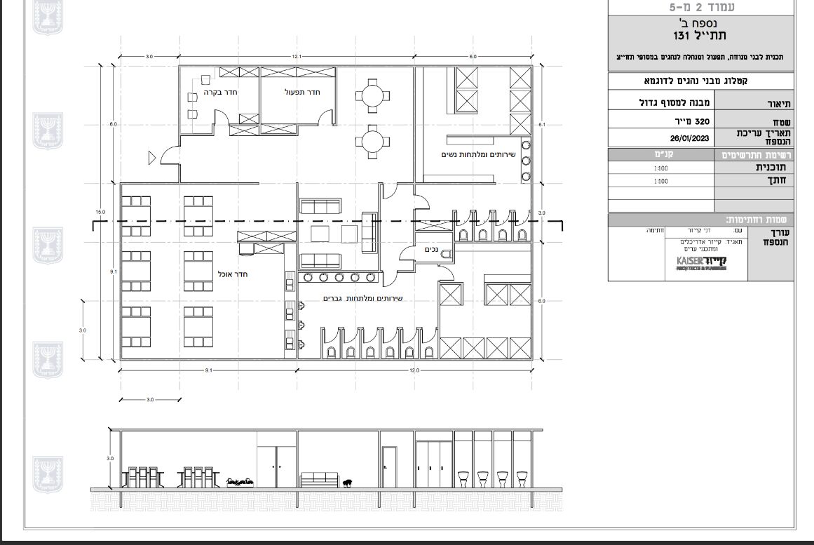
מתקן גדול מתקן בגודל שבין 120 מ"ר ל550 מ"ר

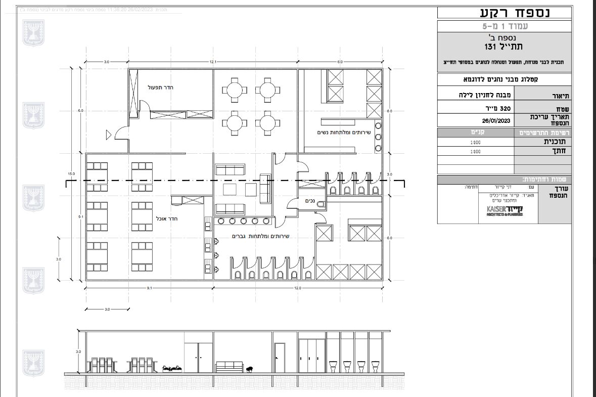
חניון לילה יהיה בין 110 מ"ר ל550 מ"ר

תחנת קצה שטח שלא יעלה על 20 מ"ר

להצטרפות לוואטסאפ חדשות רחובות להצטרפות לקבוצת דילים וקופונים לאליאקספרס
באתר זה שולבו סרטונים, תמונות ומידע מהרשתות החברתיות בשימוש לפי סעיף 27א לחוק זכויות יוצרים. במידה וידוע מי צילם שלחו למייל בקשה לצרף קרדיט או להסרה
- אורחשינקו ויסדרו קודם את הלכלוך הטינופת והזוהמה בחזית של רציף האוטובוסים בקניון אחר כך שישפצו. את כל יתר07.07.24 19:50 תגובה

מנסה לטעון שוב
הצטרפו אלינו!
הצטרפו לקבוצות הוואטסאפ שלנו:
אפליקציה בחנות האפליקציות: